LIFE
/ 寫在前面 /

本案是一套143㎡的全屋頂墻定制—新中式風格。新中式的韻味真正融入到現代家居生活當中,沒有了繁重的實木家具,也沒有了復雜的硬裝設計,將流暢的線條、精致的裝飾來點綴空間,使其變得更加的大氣與典雅。將典雅詩意的東方風韻帶入居住空間,時刻邂逅生活的魅力;
作品信息
設計風格:新中式風格
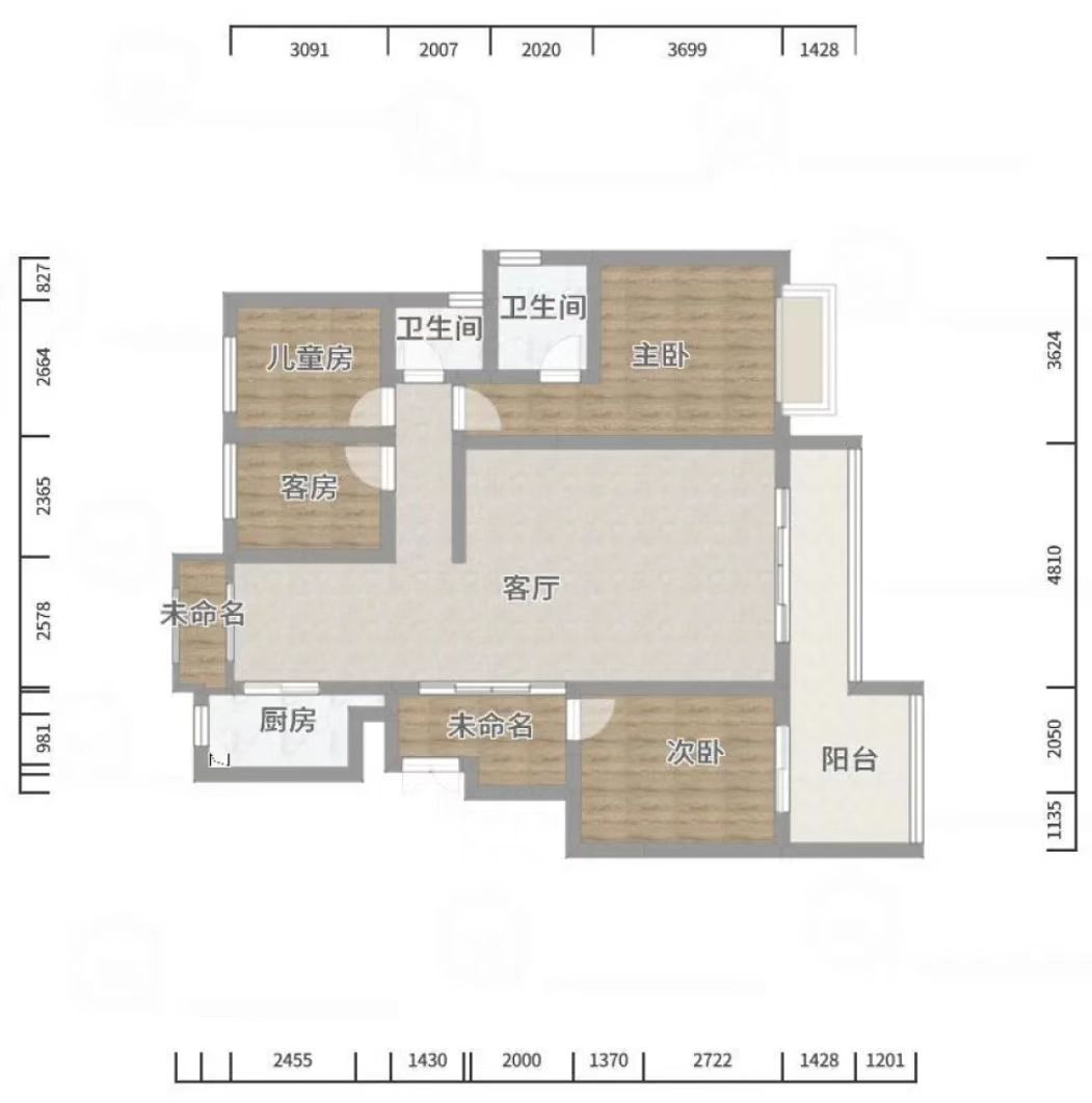
戶型面積:143㎡
案例戶型:三室兩廳
全案采用星雅圖頂墻定制系列產品
01
客餐廳




客餐廳一體化設計,空間功能區劃分自然和諧,動線所及視線都有禪意小景,每一個空間角落都不失美感,造就了一個獨特的東方意境
整體格調高雅,對稱的沙發背景墻設計營造出新中式的沉穩大方,墻面選用低調沉穩的灰棕色木紋墻板,呈現簡約大氣之感,低調質樸卻不失尊貴奢華;新中式是為了突破古典中式的沉悶感而衍生的,在保留古色古香的木質元素的同時,客廳中電視背景墻及餐廳墻面設計師結合了現代的大理石紋墻板,兼顧了傳統風韻與現代美感,流露出高潔素雅的氣質;
整體的設計線條干練,色調穩重,透露出東方意境的含蓄;
02
主臥

極具中式特色的對稱,燈具墜于床頭兩側,沒有過多的裝飾,臥室顏值實用性兼具,無需過多修飾,床頭背景墻選用白布藝布紋墻板鑲嵌金屬條,既彰顯經典、輕奢質感也體現的淋漓盡致,傳統的經典配色也不失現代,這難道不就是我們一直所追求的嗎?
03
次臥

臥室背景墻兩側木飾面墻板對稱分布,床頭適當留白,利落的裝飾線條,中間搭配一副好看的山水裝飾畫,豐富空間層次,在濃濃古韻中滲透幾許現代氣息,與新中式風格交融而不違和。
04
兒童房

兒童房不大,靠窗定制榻榻米,提高了空間利用率,滿足小孩子收納等需求,功能強大!墻面沿用主次臥同色布紋墻板,使整體風格統一。
05
衛生間

采用了干濕分離設計,日常使用起來安全、高效、衛生。星雅圖浴室暖空調,搶眼又創新的線型造型,將照明功能和裝飾功能整合在一處,讓衛浴空間更有腔調。